15 LO­GE­MENTS À SAINT-NA­ZAIRE

15 LOGEMENTS À SAINT-NAZAIRE

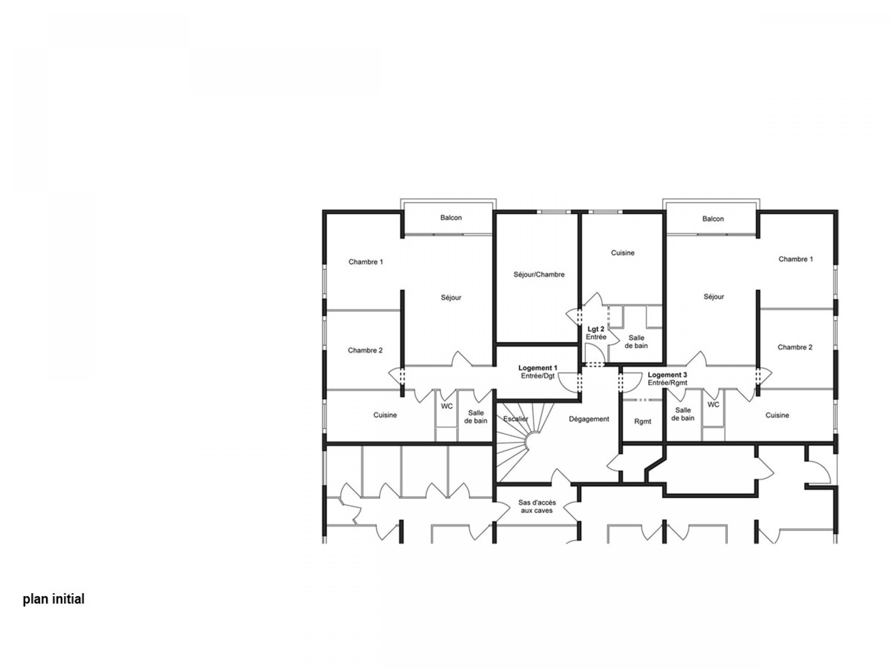
La stratégie de projet vise à offrir de très grands logements permettant diversité, flexibilité d'usage et confort de vie pour des familles allant jusqu'à neuf enfants en restructurant des logements existants. Il s'agit d'intervenir au minimum sur le gros œuvre dans une logique de maîtrise des coûts pour proposer une extension qui permet d'offrir un espace intermédiaire aux habitants.

Cette extension est un prolongement du logement offrant à la fois les qualités d'un espace couvert et d'une grande ouverture sur un environnement paysager. Une grande façade vitrée s'ouvre pour associer l'extérieur au logement. A l'inverse, dans un souci d'intimité, la porosité de cette façade se module au moyen de stores extérieurs à ventelles orientables. Ce jardin d'hiver est tour à tour terrasse ou extension du séjour. La toiture du jardin d'hiver devient aussi support de grands balcons pour les appartements de l'étage.

PROGRAMME : Restructuration  de 15 logements sociaux à Saint-Nazaire (44)

SURFACE : 1120 m2 SHON / BUDGET : 700 K€ HT

MAITRISE D'OUVRAGE : OPAC Silène  (44)

EQUIPE : Hays ing. (fluides), Moy (économie de la construction), E2c (structure)

ENVIRONNEMENT : Cibles Hqe 1/2/3/4/5/7/8/9/10

MISSION : Mission de base +relevé

CALENDRIER : livré en 2010

15 LOGEMENTS À SAINT-NAZAIRE
15 LOGEMENTS À SAINT-NAZAIRE
15 LOGEMENTS À SAINT-NAZAIRE
15 LOGEMENTS À SAINT-NAZAIRE
15 LOGEMENTS À SAINT-NAZAIRE
15 LOGEMENTS À SAINT-NAZAIRE
15 LOGEMENTS À SAINT-NAZAIRE
15 LOGEMENTS À SAINT-NAZAIRE
15 LOGEMENTS À SAINT-NAZAIRE
15 LOGEMENTS À SAINT-NAZAIRE
15 LOGEMENTS À SAINT-NAZAIRE