20 LO­GE­MENTS À DONGES

20 LOGEMENTS À DONGES

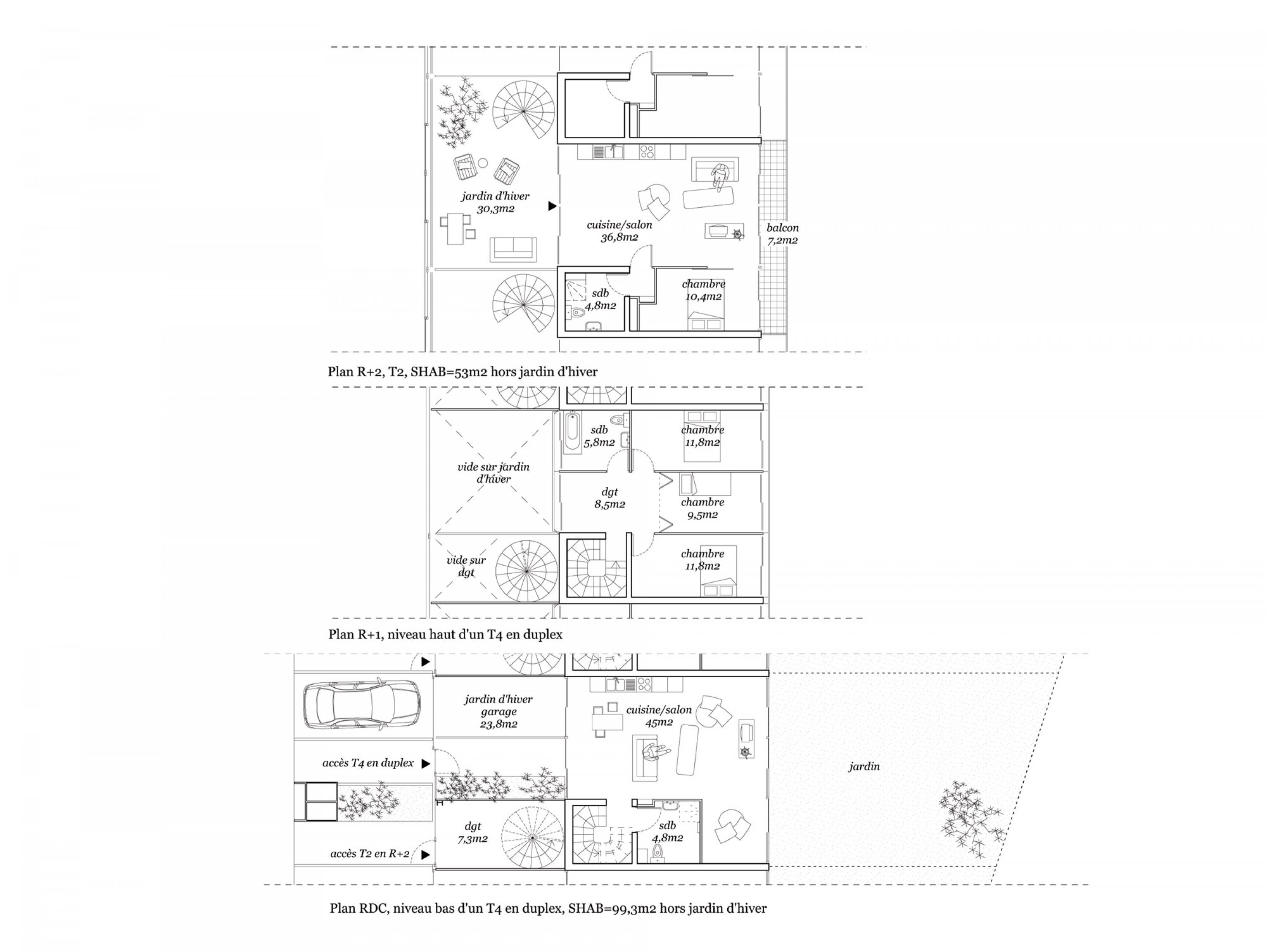
Le site est bordé en périphérie par une structure végétale dense et haute (chênes) qui créée les limites naturelles du terrain : une clairière. Le projet privilégie cette qualité pour profiter visuellement et physiquement de cette nature existante, variable au gré des saisons. Les habitats sont traversants d'Est en Ouest et largement ouverts sur le paysage. Ils offrent des surfaces généreuses avec la création de jardins d'hiver comme pièce supplémentaire et balcons. La construction est respectueuse de l'environnement par la recherche de performances thermiques en usant de la bio-climatique passive.

PROGRAMME : Construction de 20 logements sociaux semi-individuels ZAC des Ecottais à Donges (44)

SURFACE : 1986 m2 SHON / BUDGET : 1,92M€ HT 

MAITRÎSE D'OUVRAGE : OPH Silène (44)             

EQUIPE : Pouget (fluides), Azeco (économie de la construction), Plbi (structure), Quatuor (opc), Gui Jourdan (acoustique)

ENVIRONNEMENT : label BBC, cibles Hqe 1/2/3/4/5/7/8/9/10, Qualitel Cerqual

MISSION : Mission de base

CALENDRIER : 2012-2013

20 LOGEMENTS À DONGES
20 LOGEMENTS À DONGES
20 LOGEMENTS À DONGES
20 LOGEMENTS À DONGES
20 LOGEMENTS À DONGES
20 LOGEMENTS À DONGES
20 LOGEMENTS À DONGES