40 LO­GE­MENTS AUX SO­RI­NIÈRES

40 LOGEMENTS AUX SORINIÈRES

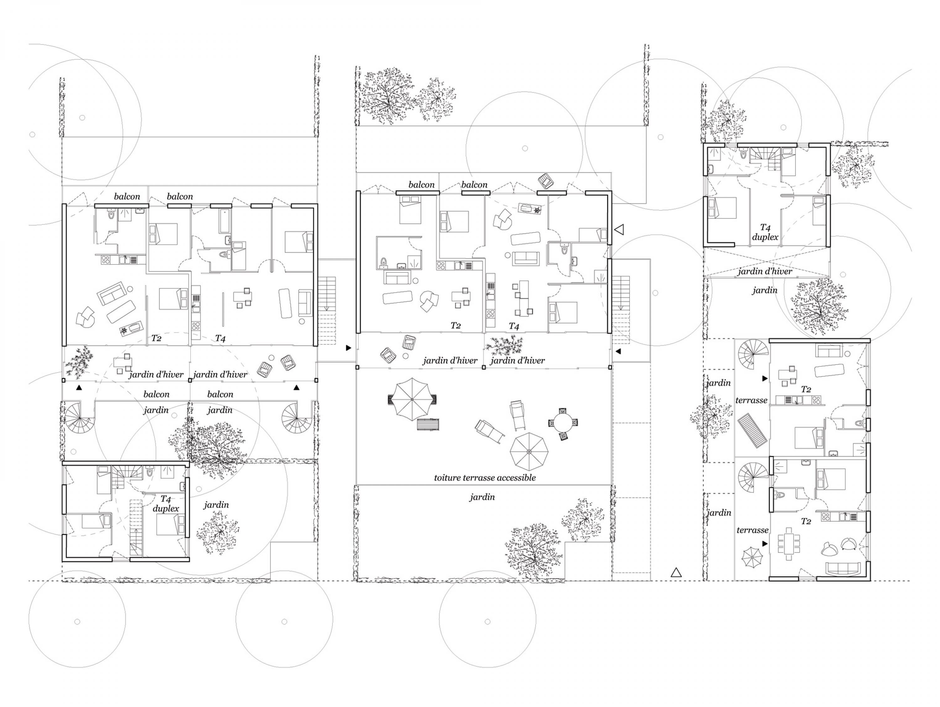
La qualité de vi(ll)e passe d'abord par le fait de construire des habitats plutôt que des logements, et de développer les qualités de la maison.

Le projet décline différents types d'habitats sur cette base. Des habitats individuels, intermédiaires, semi-intermédiaires... où l'on prend soin de proposer des alternatives à la forme du collectif.

La question du vivre ensemble est aujourd'hui celle du commun, de ce qui nous relie, et non plus du collectif.

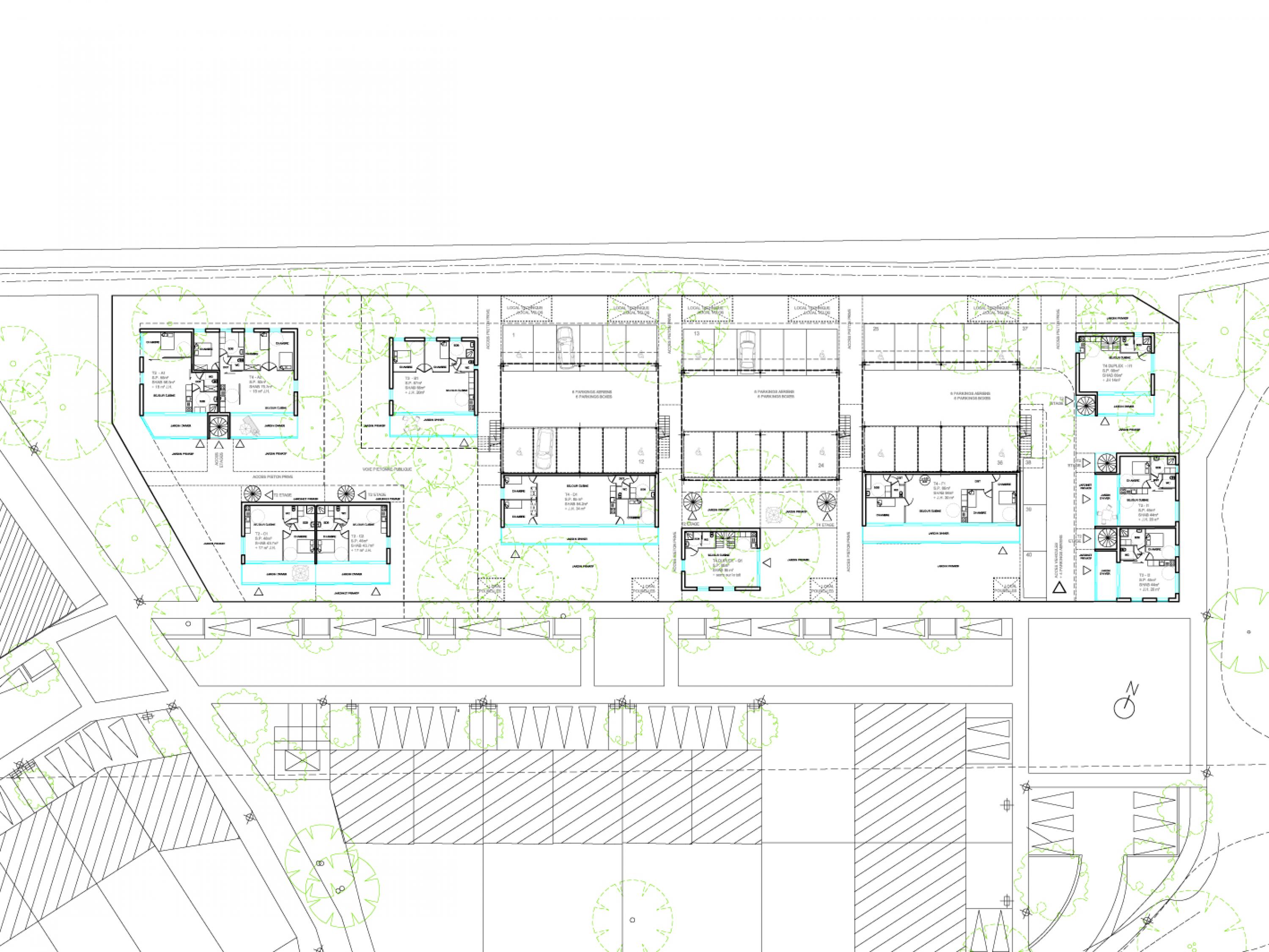
PROGRAMME : 40 logements locatifs sociaux aux Sorinières (44)

SURFACE : 2 435,20 m2 SHAB / BUDGET : 3,9 M€ TTC

MAÎTRISE D'OUVRAGE : La Nantaise d'Habitation (44)

EQUIPE : CMB 44 (économie de la construction), PLBI (structure), ISOCRATE (fluides et thermique), AÏDA (acoustique)

MISSION : Concours 2013

40 LOGEMENTS AUX SORINIÈRES
40 LOGEMENTS AUX SORINIÈRES
40 LOGEMENTS AUX SORINIÈRES
40 LOGEMENTS AUX SORINIÈRES
40 LOGEMENTS AUX SORINIÈRES
40 LOGEMENTS AUX SORINIÈRES
40 LOGEMENTS AUX SORINIÈRES
40 LOGEMENTS AUX SORINIÈRES
40 LOGEMENTS AUX SORINIÈRES
40 LOGEMENTS AUX SORINIÈRES
40 LOGEMENTS AUX SORINIÈRES
40 LOGEMENTS AUX SORINIÈRES
40 LOGEMENTS AUX SORINIÈRES
40 LOGEMENTS AUX SORINIÈRES
40 LOGEMENTS AUX SORINIÈRES
40 LOGEMENTS AUX SORINIÈRES
40 LOGEMENTS AUX SORINIÈRES
40 LOGEMENTS AUX SORINIÈRES
40 LOGEMENTS AUX SORINIÈRES
40 LOGEMENTS AUX SORINIÈRES
40 LOGEMENTS AUX SORINIÈRES